工場紹介

Facilities

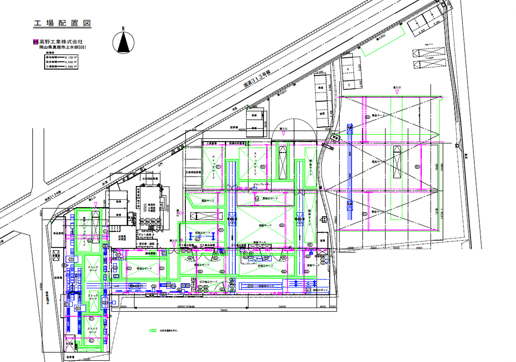
Floor Plan

工場見取り図

切断用設備

01
NC バンドソー
02
バンドソー
03
丸鋸盤
04
シャーリング
05
コーナーカッター
06
自動ガス切断機

穴明用設備

10
NC ドリルマシン
11
NC オートボーラー
12
ボール盤
13
アトラマスター
14
ポンチングマシン
15
自動ドリル研削盤

端面処理用設備

16
H形鋼用開先加工機 (両面)
17
H形鋼用開先加工機 (片面)
18
鋼板用開先加工機
19
ハンドベベラー
20
H形鋼用ショットブラスト機
21
鋼板用ショットブラスト機
22
H形鋼用開先加工機(ノンスカ)

組立用設備

30
コア部組立治具
31
仕口組立治具
32
柱大組立治具

溶接用設備

41
柱大組立溶接ロボット
42
コア仕口溶接ロボット
43
半自動溶接機一
44
半自動溶接機 (ガウジング付)
45
手動アーク溶接機
46
溶接棒乾燥機
47
柱反転機
48
仕口 柱反転機
49
サンアーム

揚重用設備

50
天井走行クレーン 2.8トン
51
天井走行クレーン 2.8トン
52
片持式ジブクレーン1.5トン
53
片脚式走行クレーン 2.8トン
54
片脚式走行クレーン 4.8トン

製品搬出横持設備

80
電動台車−1
81
電動台車−2
82
電動台車−3

Facilities

生産エリア・設備

大型案件に応える、盤石な生産基盤

広大な敷地と最新の生産設備を整えています。
図面からCAD設計、加工、そして徹底した品質検査まで。
各工程に専用のエリアと機械を配備し、自社一貫体制を築いています。

一次加工・端面処理エリア

NCバンドソーやドリルマシンを用い、精度の起点となる精密な切断・穴あけ加工を行います。

切断用設備
穴明用設備
端面処理用設備

NCバンドソー アマダ HK-1000ⅢCNC

バンドソー アマダ H750HD

コーナーカッター タケダ機械 THC-212A

シャーリング 相澤鉄工所 S1313

NCドリルマシン 大東精機 CSDⅢ-1050

ポンチングマシン

H形鋼用ショットブラスト機 新東工業 KACX-ⅡA

H形鋼用ショットブラスト機 新東工業 KACX-ⅡA

H形鋼用開先加工機(ノンスカ)

組立・溶接エリア

各種溶接ロボットや自動反転機を駆使し、強固な構造体を組み上げます。

溶接用設備
組立用設備

鉄骨柱大組立溶接ロボット
神戸製鋼所 ARCMAN-RON mkIII 10T-800M2

仕口反転機 ラインワークス N2000

コア仕口溶接ロボット神戸製鋼所 ARCMAN-MP

仕口組立治具 中部機販 SDL-DXⅡ

揚重・製品管理エリア(屋根付き)

天井走行クレーンを備えた広大なスペースで、出荷まで製品を大切に保管します。

天井走行クレーン

片脚橋形走行クレーン

片持式ジブクレーン

設計・検査室

3次元CADによる詳細設計と、超音波探傷器等による厳格な品質管理を徹底します。

鉄骨専用CADシステム カルテック 鉄骨王Ⅱ

汎用ソフト カルテック鉄骨王子

SDGs

太陽光発電設備完備

当社では、再生可能エネルギーの活用を通じた環境負荷低減を推進しています。2014年5月より49kW規模の太陽光発電設備を導入し、社内で使用する電力の約50%を自家発電でまかなっています。これにより、CO₂排出量の削減と持続可能な事業運営に取り組んでいます。

In-housefacilities

社内設備・環境

「良い仕事」は、健やかな環境から

確かな品質を支えるのは、そこで働く社員一人ひとりの士気と安心です。 高野工業では、
日々の疲れを癒やし、明日への意欲を高めるための環境づくりを大切にしています。

応接室

応接室

お客様との打ち合わせや工場見学時のご案内など、
落ち着いて対話ができる空間を整えています。

作業スペース

打ち合わせスペース

設計データの確認や図面の打ち合わせなど、
現場と連携した作業スペースを設けています。

社内設備・環境については採用ページで詳しくご紹介しています。

最新の生産基盤と、人を想う社内環境。
この両輪が生む心のゆとりが、
現場の安全と最高品質の
ものづくりを支えています。
私たちはこれからも、社員の士気を大切に、
社会を支える確かなものづくりを
続けて参ります。

Contact

お問い合わせ

鉄骨製作のご相談、
お見積りは高野工業へ

自社一貫の確かな技術で、
街の安心を支えます。